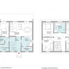
Проект дома 140 кв.м 2 этажа
Площадь дома - 140 кв.м., 2 этажа.
Двухэтажный дом с шестью комнатами, открытой кухней, кладовой, ванной комнатой, гостевым туалетом, подсобным помещением и прихожей. Шатровая крыша с уклоном крыши 22 °.
Строительство возможно из следующих материалов:
1. Каркас ЛСТК, стены монолитный пенобетон;
2. Газобетон;
3. Керамический блок (кирпич теплая керамика);
Варианты комплектации:
от 15 000 р/м2
Фундамент | монолитная - плита 200-350 мм (в зависимости от проекта и геологии) |
Несущие стены | газобетон, теплая керамика, ЛСТК пенобетон |
Перекрытия | монолитный ж/б или сборно монолитные |
Кровля | стропильная система покрытие металлочерепица |
от 23 500 р/м2
Фундамент | монолитная - плита 200-350 мм (в зависимости от проекта и геологии) |
Несущие стены | газобетон, теплая керамика, ЛСТК пенобетон |
Отделка фасада | штукатурка Baumit |
Отделка цоколя | knauf КНАУФ-Зокельпутц, окраска |
Перекрытия | монолитный ж/б или сборно монолитные |
Кровля | стропильная система покрытие металлочерепица, утепление 200 мм, подшив свесов кровли, водосточная система |
Окна | металлопластиковые |
Дверь входная | металлическая |
Дымовентиляционная система | Schiedel |
от 28 500 р/м2
|
Фундамент |
монолитная - плита 200-350 мм (в зависимости от проекта и геологии) |
|
Несущие стены |
газобетон, теплая керамика, ЛСТК пенобетон |
|
Отделка фасада |
штукатурка Baumit |
|
Отделка цоколя |
knauf КНАУФ-Зокельпутц, окраска |
|
Перекрытия |
монолитный ж/б или сборно монолитные |
|
Кровля |
стропильная система покрытие металлочерепица, утепление 200мм, подшив свесов кровли, водосточная система |
|
Инженерные системы |
электромонтаж и сантехн. монтаж труб |
|
Лестница |
монолитная ж/б |
|
Перегородки |
100 мм |
|
Отделка |
штукатурка и окраска стен и потолков |
|
Окна |
металлопластиковые |
|
Дверь входная |
металлическая |
|
Дымовентиляционная система |
Schiedel |
*Точная стоимость строительства определяется по запросу коммерческого предложения, с учетом места строительства, привязки к земельному участку, выбору материалов дома и комплектации, наличия или отсутствия сетей водоснабжения, газоснабжения и канализации на участке. С учетом необходимости строительства и подключения автономных инженерных сетей.